【公式】アートホテル旭川 – ART HOTEL ASAHIKAWA

会議・宴会・法要

BANQUET

ご利用シーン

会議やセミナー、展示会などさまざまな目的、
用途に合わせてお客様をサポートいたします。

大人数のご宴会からアットホームなパーティーまで、
多彩なプランをご用意しております。

在りし日を懐かしみながら故人を偲ぶご法要。
大切なひとときをまごころこめてお手伝いさせていただきます。

会場のご案内

ボールルーム

960㎡ 290坪

最大1500人規模に対応。 上質な時間をご提供いたします。

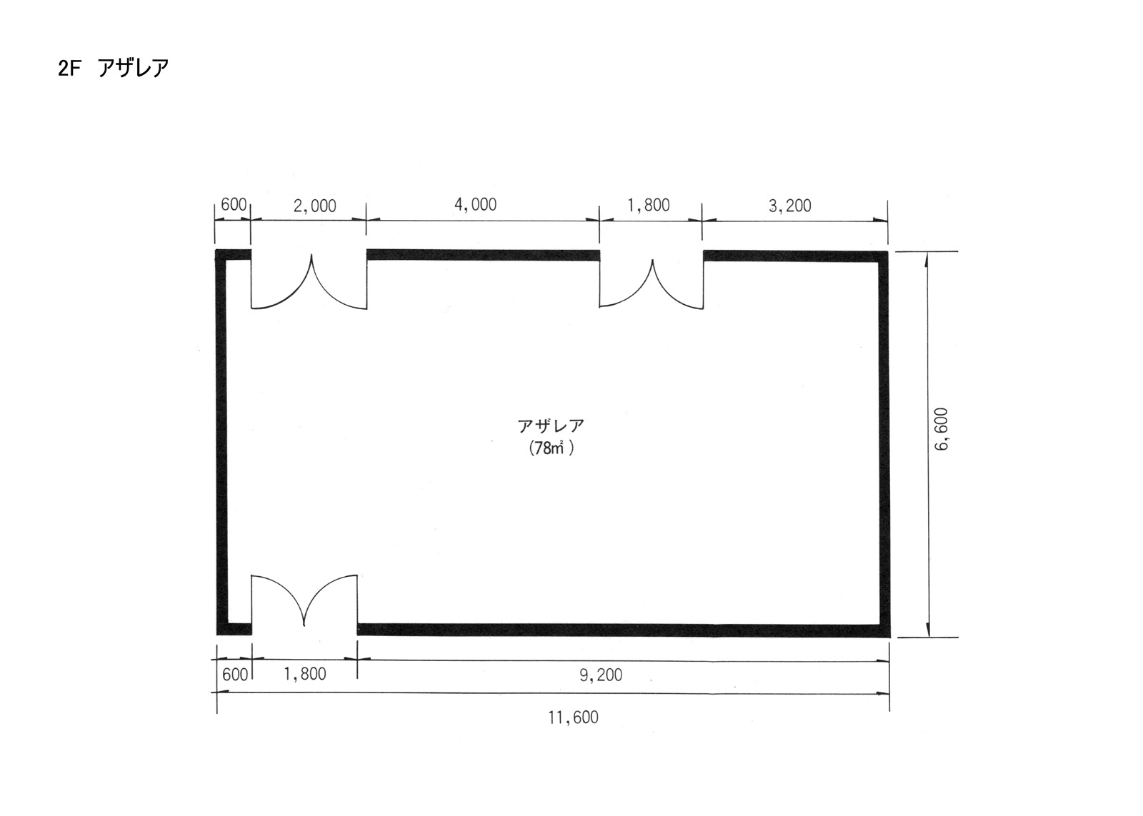
アザレア

78㎡ 24坪

最大40人規模に対応。

ライラック

156㎡ 47坪

最大150人規模に対応。

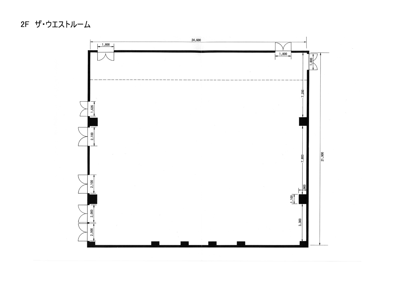
ザ・ウエストルーム

540㎡ 163坪

最大500人規模に対応。披露宴・祝賀会などに最適です。

会場面積・収容人数

ボタンをクリックすると、会場レイアウトまたは平面図がご覧いただけます。

会場名 面積 パーティー 立食 スクール ロの字 シアター 会場図 平面図
2F ザ・ウエストルーム 540㎡
163坪
300 500

275

100 592
ザ・イーストルーム 417㎡
126坪
240 350 220 80 444
アザレア 78㎡
24坪
40 30 20 24 81
ローアン 117㎡
35坪
50 40 50 32 117
パンジー 104㎡
31坪
50 40 50 32 117
ライラック 156㎡
47坪
70 50 56 36 153
コスモス 72㎡
22坪
30 20 15 20 78
3F ボールルーム 960㎡
290坪
540 1,000 600 250

1,110

ボールルーム I 417㎡
126坪
220 350 280 104 500
ボールルーム II 417㎡
126坪
220 350 280 104 500
ハマナス 122㎡
37坪
50 60 50 32 117
4F BIZルーム I 132㎡
40坪
60 50 63 36 122
BIZルーム II 130㎡
39坪
60 50 63 36 122
ボードルーム I 43㎡
13坪
10 12 18 12 42
ボードルーム II 37㎡
11坪
10 12 18 8 42
大和・弥生 101㎡
61畳
50 40 32 32
平安・桃山 93㎡
56畳
40 36 28 26

保存

お問い合わせ

ご予約、お見積りのご依頼、資料のご請求など、お気軽にお問い合わせください。

【営業部直通/受付時間9:00~18:00】